Espace propriétaire
fr

Votre recherche

Betschdorf (67660)

6 pièces - 129,80 m²

Duplex 6 P de 129 m² - BETSCHDORF

238 000 €
Ref : 294 - F
Découvrir le bien

À Betschdorf, à seulement 20 minutes de Haguenau, laissez-vous séduire par ce charmant duplex 6 pièces de 129,80 m².

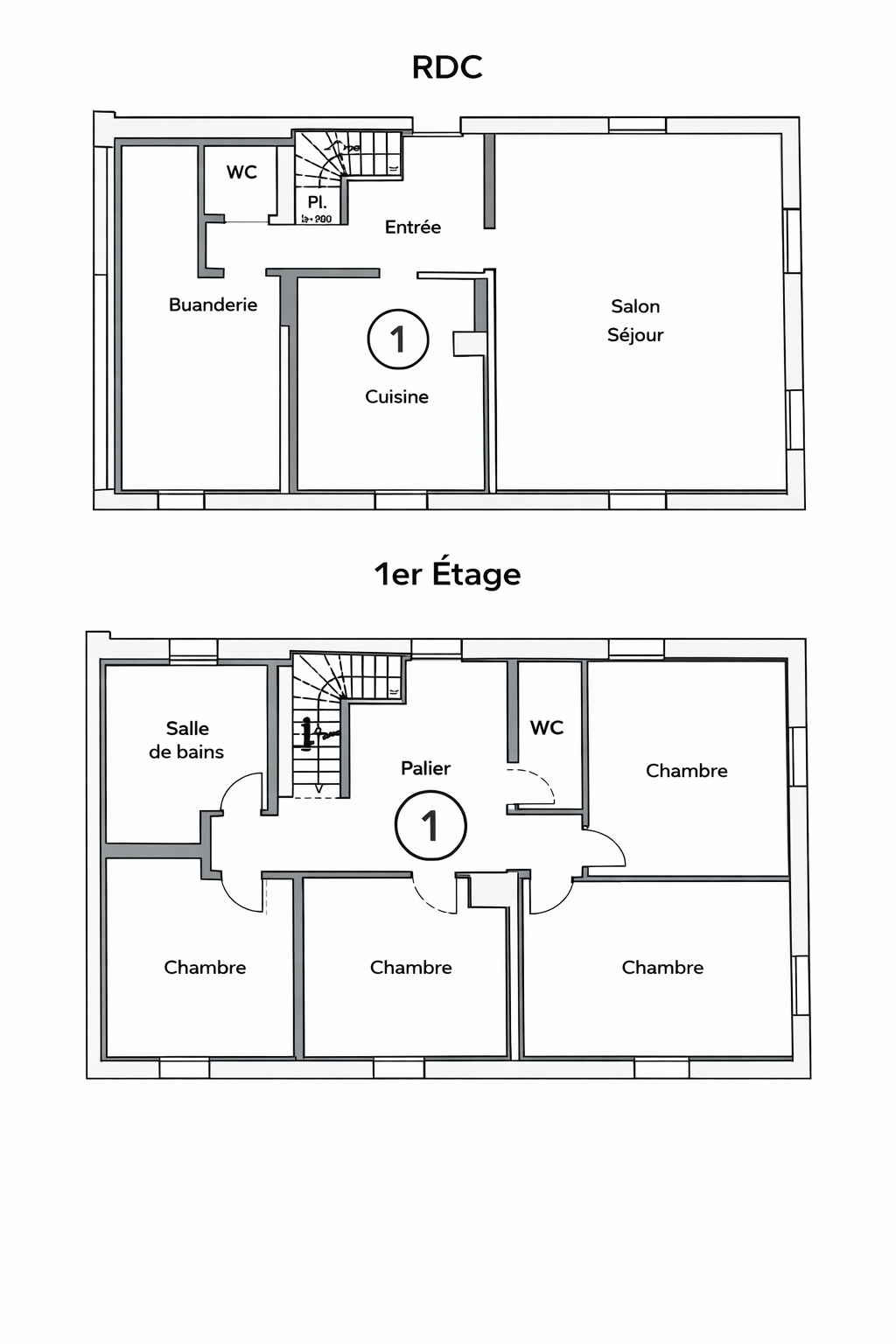
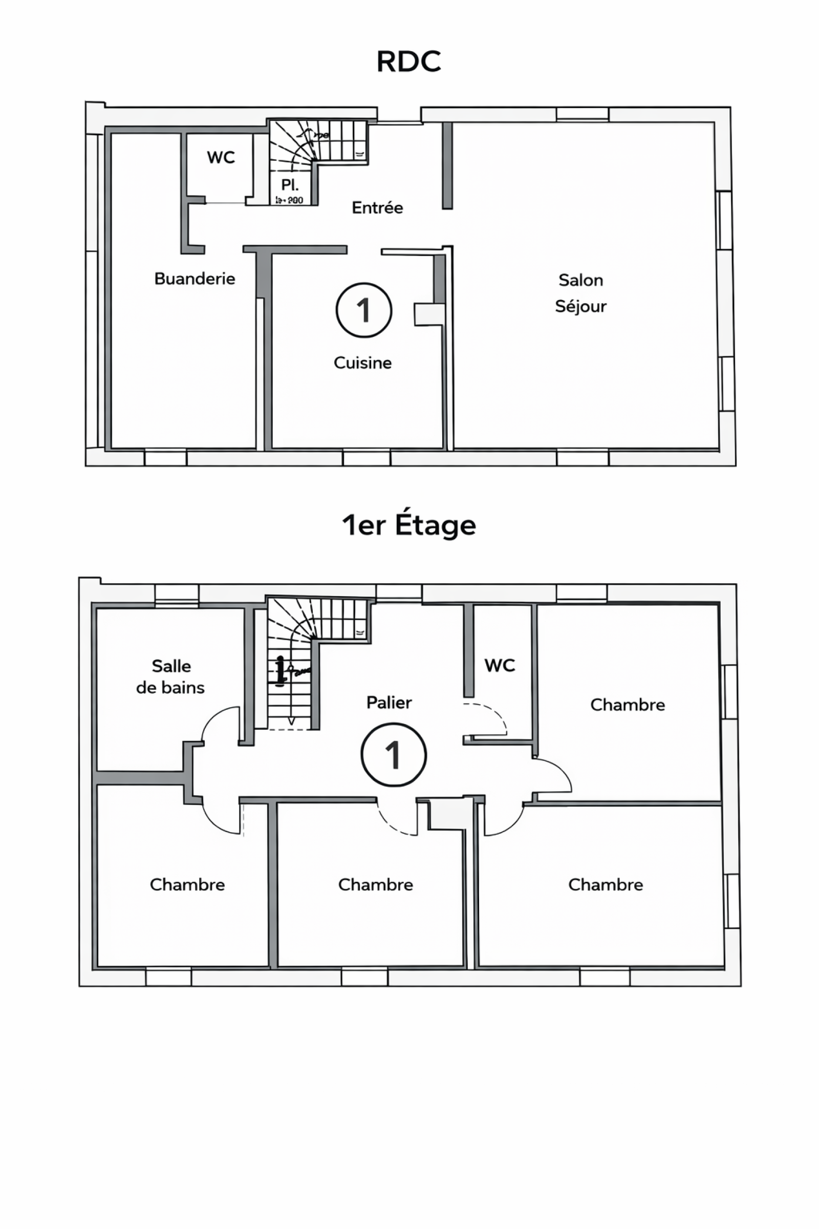
Occupant le rez-de-chaussée et le premier étage d’une maison à colombages récemment divisée en 3 lots, cet appartement se distingue par ses volumes généreux et son fort potentiel d’aménagement.

Il se compose comme suit :

- Une entrée spacieuse,

- Une cuisine séparée semi-équipée,

- Un grand séjour / salle à manger lumineux, idéal pour recevoir,

- À l’étage, un pallier desservant quatre belles chambres ainsi qu’une salle de bains entièrement carrelée avec baignoire et douche

Un espace de stockage, buanderie / cave complète le tout.

Les atouts : chauffage individuel performant (DPE C), faibles charges de copropriété (70 € / mois seulement) et la possibilité d’acquérir un garage individuel en supplément. Par ailleurs, l'aménagement d'un espace de vie extérieur est envisageable.

Aucune procédure en cours sur le fondement des articles 29-1A et 29-1 de la loi n°65-557 du 10 juillet 1965 et de l'article L615-6 du CCH.

Prix : 238 000 € HAI (comprenant 4,85 % TTC d’honoraires à la charge de l’acquéreur, soit 227 000 € net vendeur).

Pour toute information ou pour organiser une visite, contactez Jordan DELPY au 06.79.90.38.50.


Les informations sur les risques auxquels ce bien est exposé sont disponibles sur le site Géorisques
TRAD_ZEPHYR_Caracteristique TRAD_ZEPHYR_Valeurs
Code postal 67660
Surface loi Carrez (m²) 129,80 m²
Nombre de chambre(s) 4
Nombre de pièces 6
Ascenseur NON
TRAD_ZEPHYR_Caracteristique TRAD_ZEPHYR_Valeurs
Nb de salle de bains 1
Cuisine Séparée
Type de cuisine SEMI-EQUIPEE
Mode de chauffage Gaz
Type de chauffage Radiateur
Format de chauffage Individuel
Balcon NON
Terrasse NON
Cave NON
Exposition Sud-Ouest
TRAD_ZEPHYR_Caracteristique TRAD_ZEPHYR_Valeurs
Copropriété OUI
Lot n° 1
nombre de lots 3
Quote Part annuelle des charges 60 €
statut du syndic pas de procédure en cours
TRAD_ZEPHYR_Caracteristique TRAD_ZEPHYR_Valeurs
Prix de vente honoraires TTC inclus 238 000 €
Prix de vente honoraires TTC exclus 227 000 €
Honoraires TTC à la charge acquéreur 4,85 %
Charges 70 €
DPE GES
Contacter pour ce bien
L'agence
Téléphone 0388211955
Adresse
15 rue de la Gare 67610 La Wantzenau

* Champ obligatoire

Les informations recueillies sur ce formulaire sont enregistrées dans un fichier informatisé par La Boite Immo agissant comme Sous-traitant du traitement pour la gestion de la clientèle/prospects de l'Agence / du Réseau qui reste Responsable du Traitement de vos Données personnelles. La base légale du traitement repose sur l'intérêt légitime de l'Agence / du Réseau. Elles sont conservées jusqu'à demande de suppression et sont destinées à l'Agence / au Réseau. Conformément à la loi « informatique et libertés », vous disposez des droits d’accès, de rectification, d’effacement, d’opposition, de limitation et de portabilité de vos données. Vous pouvez retirer votre consentement à tout moment en contactant directement l’Agence / Le Réseau. Consultez le site https://cnil.fr/fr pour plus d’informations sur vos droits. Si vous estimez, après avoir contacté l'Agence / le Réseau, que vos droits « Informatique et Libertés » ne sont pas respectés, vous pouvez adresser une réclamation à la CNIL. Nous vous informons de l’existence de la liste d'opposition au démarchage téléphonique « Bloctel », sur laquelle vous pouvez vous inscrire ici : https://www.bloctel.gouv.fr Dans le cadre de la protection des Données personnelles, nous vous invitons à ne pas inscrire de Données sensibles dans le champ de saisie libre.
Ce site est protégé par reCAPTCHA, les Politiques de Confidentialité et les Conditions d'Utilisation de Google s'appliquent.

Découvrir nos outils